
Above: This image taken from a
northwest-facing 1937
aerial photo of the Imperial Sugar Company shows Tower 114 in the
center of the image (with magnification at right), adjacent to office buildings within the company's refinery and
headquarters complex. The Sugar Land Railway is visible from the lower left
corner of the image crossing the Southern Pacific tracks near the center, passing the west side of the tower and then curving further west off the
top of the image. Below: It is
difficult to know for certain, but suffice to say that Tower 114 would likely
have been visible in this Google Street View image if it had been taken decades
before December, 2016. The Sugar Land Railway tracks remain embedded in the
Kempner St. pavement, but whether this was the main track or the connecting
track that passed behind the tower in the image above (or perhaps some other
track built later) is unknown. Union Pacific now owns the tracks at left that
occupy a right-of-way established in 1855 and later acquired by Southern Pacific. The Imperial Sugar facilities in the
vicinity of Tower 114 have mostly been removed to make room for urban development.

The Buffalo Bayou, Brazos and Colorado (BBB&C) Railway
was the first railroad in Texas. Construction started in 1853 at
Harrisburg, a settlement on Buffalo Bayou southeast
of Houston, and proceeded west toward San Antonio. Railroad Commission of Texas
(RCT) records state that twenty miles of track was laid that year to Stafford's
Point, followed by twelve additional miles in 1855 to Richmond. The coastal
prairie through which the BBB&C passed had been an area of sugar production
dating back to the 1820s. In the 1840s, the sugar cane crop had begun to expand
significantly, making sustained commercial sugar milling viable. Despite
excellent soil, sun and rainfall in the "Sugar Bowl" area of Texas, sugar cane
was not easy to grow. It required crop rotation and frequent replanting to
achieve good yields. The supply of locally grown cane was often insufficient for
the capacity of the area's mills, so the owners developed other
sources. Inbound shipments of sugar cane from distant plantations and outbound
shipments of processed sugar would be ideal freight
for railroads.
If the BBB&C was planning on substantial sugar business,
it certainly helped that the grade to Richmond went through the Oakland
Plantation, a large agricultural operation with sugar cane and other crops. The
plantation had been purchased by Benjamin F. Terry and William J. Kyle in 1853,
a partnership that just happened to have the BBB&C's track construction
contract! In 1858, a Post Office for "Sugar Land" was established for the
plantation community that had settled near the large sugar mill built in 1843.
Jonathan Waters, a BBB&C investor and company officer, owned another nearby
sugar enterprise, the Arcola Plantation, a dozen miles south of Sugar Land. To
get rail service into the vicinity, Waters and other plantation owners farther
south needed a north/south railroad to connect with the BBB&C.
By
1856, merchants in Houston had noticed that much of the trade brought into
Harrisburg by the BBB&C's rails was going south on Buffalo Bayou to Galveston
rather than north on the bayou to Houston. They proposed the BBB&C's charter be amended
by the Legislature to authorize the city of Houston to issue bonds for a branch
line 6.5 miles south to "tap" the BBB&C. After the branch was built --
Houstonians called it the "Houston Tap" -- plantation owners saw that extending
it
farther south into the heart of the Sugar Bowl would bring them the
rail service they desired. To this end, the Houston Tap & Brazoria (HT&B) Railway was
founded to acquire the Houston Tap and extend it to Columbia, a port on
the west bank of the Brazos river where it became navigable some 30 miles from
the Gulf of Mexico. The town's name morphed into
West Columbia when people began calling the community across the river East Columbia. The HT&B acquired the Houston Tap and proceeded to build south across the BBB&C.
This immediately created the first grade crossing of two railroads in Texas at Peirce Junction, named for
Thomas W. Peirce (with the unusual "ei" spelling), a railroad investor,
officer and attorney. Tracks reached East Columbia 45 miles south in 1860
and the line became
known as the "Columbia Tap",
a nickname that has persisted for more than 150 years.
The Civil War
created an economic demise that resulted in physical deterioration and financial
ruin of Texas railroads. Among many other difficulties, the war prevented the
Columbia Tap from bridging the Brazos River into West Columbia (and it never
did.) After the war, the Columbia Tap was sold for $500 at a sheriff's sale due
to its substantial indebtedness to the state of Texas for construction loans. In
1873, the Columbia Tap was acquired by the Houston & Great Northern Railroad
which merged with the International Railroad later that year to form the
International - Great Northern (I-GN) Railroad. Under I-GN ownership, the
Columbia Tap was repaired and service resumed along its tracks south of Houston.
The BBB&C incurred a similar fate. After defaulting on its construction
financing, it was acquired in 1870 by an investor group with Thomas Peirce
becoming President. Peirce rehabilitated the BBB&C and renamed it the Galveston,
Harrisburg & San Antonio (GH&SA) Railway. [Like many railroads, the name was
aspirational -- only Harrisburg was actually served by the GH&SA at the time.]
The GH&SA resumed building west, reaching San Antonio by 1877. Due to its
westward trajectory, the nickname "the Sunset Route" was adopted. Within a year,
Peirce was developing plans to extend it to El Paso to connect with the Southern
Pacific (SP) coming east from California. In January, 1883, Peirce drove the
Silver Spike where the two railroads met near the Pecos River, signifying
completion of the major portion of the southern transcontinental rail line. SP
had obtained an interest in the GH&SA by financing its westward construction
from San Antonio. In 1885, it was leased by SP and subsequently
acquired.
The economic
recovery did not extend to the Oakland Plantation, which continued to decline.
Both owners, Messrs. Terry and Kyle, had died in the early 1860s leaving a void
at the plantation. Much of the plantation's land was sold to E. H. Cunningham of
San Antonio who built a large refinery there in 1879. Although the Sugar Land
Post Office closed in 1886, the local economy stimulated by the Cunningham Sugar
Co. improved enough to justify a new post office in 1890.
Immediately south of Cunningham's property,
the Arcola Plantation had rebounded from the Civil War. It had been
purchased by Thomas Peirce in 1872, but resold a week later to Thomas W. House.
House was a wealthy merchant, private banker, civic leader, former mayor of
Houston, and an active investor with interests ranging from railroads to natural
gas to cotton. He was also the first vendor of ice cream in Houston, which
might explain his interest in sugar (and perhaps his election as mayor!) House made substantial investments in
his plantation and began to produce excellent sugar. The mill was located at
"House's Sugar House", which became settled as the community of House. The
Columbia Tap tracks ran along the eastern side of the plantation less than two
miles from House. Across the northern part of the property, a new railroad, the
Gulf, Colorado & Santa Fe (GC&SF) Railway, was granted a right-of-way (ROW) in
1877 as part of their initial construction from Galveston to Richmond. This was
a consequential development for area commerce as the new railroad
evolved into a major Class 1 operation integrated into the vast Atchison, Topeka
& Santa Fe Railway network.
Although the Santa Fe and I-GN were nearby,
Cunningham's only rail outlet was SP. Convinced he was not getting
competitive shipping rates, Cunningham sought other options. Working with Galveston
investor G. B. Miller and others, Cunningham developed a plan to build
a railroad. His Sugar Land Railway (SLRy) was chartered
on October 21, 1893, but the news was out well
before then. The Galveston Daily News
of March 23, 1893 quotes Mr. S. K. Wheeler, Santa Fe's superintendent of transportation,
saying "I do not see why Cunningham and Miller will build a road twenty-five
miles long to connect with the International and Great Northern when they can
reach the Santa Fe by building about eight miles. Our road can handle the sugar
from Galveston as cheaply as the Southern Pacific...". Santa Fe's tracks were
actually closer than eight miles. Their route crossed the Columbia Tap at Arcola
Junction, spanned the northern part of the Arcola Plantation, bridged
the Brazos River, and then angled northwest to Richmond,
passing less than seven miles southwest of Sugar Land.
Cunningham was
certainly aware of Santa Fe and I-GN as potential competitors to SP for his
business. I-GN's Columbia Tap was only 14 miles from Sugar Land, and both I-GN
and Santa Fe had bridges onto Galveston Island; SP would not have one for
several more years. [I-GN's bridge was owned by the Galveston, Houston &
Henderson (GH&H) railroad which I-GN had leased in 1883. The validity of that
lease was in litigation at the time, but I-GN retained use of the bridge and
ultimately gained permanent trackage rights when the lawsuit was settled.] I-GN also offered
an option unavailable to SP and Santa Fe: direct access to the port of Velasco
at the mouth of the Brazos. Velasco's port had reopened in 1891, was closer to Sugar Land than Galveston, and
had direct rail service from the Columbia Tap at Anchor over the Velasco
Terminal Railway (VTR). Cunningham was importing a large volume of sugar cane
and low grade sugar products from Cuba for his mills and refinery. Routing
through Velasco was an intriguing option, particularly because Anchor was only
about 32 miles from Sugar Land. A Sugar Land to Anchor rail line remained a long
term option for Cunningham, but RCT records show that the SLRy proceeded with
14.2 miles from Sugar Land to "Arcola" in 1894. "Arcola" was an
ambiguous name; there were at least three communities that used it over a
two-mile stretch of the Columbia Tap. The connection was located at Arcola
Junction, where the Santa Fe crossed the I-GN.
Overview Map
(not all railroads are
shown)

Abbreviations and
Notes for the Above Map:
Sugar Land
Railway (SLRy)
Houston & Brazos Valley Railway (H&BV)
Galveston,
Harrisburg & San Antonio Railway (GH&SA)
Gulf, Colorado & Santa Fe Railway
(Santa Fe)
International & Great Northern Railway (I-GN)
Galveston,
Houston & Henderson Railroad (GH&H)
1. The
Houston & Brazos Valley (H&BV) became a successor to the Velasco Terminal
Railway serving Freeport (Velasco.)
2. The SLRy built 12 miles north from
Cabell to Hickey in 1931; the segment was removed in 1942.
3. Peirce Junction
was renamed Pierce Junction, reportedly by Post Office officials in 1876.
4. I-GN's route through Harrisburg was due to its lease of the GH&H.
While the SLRy was preparing to begin construction, the Galveston Daily News of August 6, 1893 reported that "The International railway company is constructing a spur from Arcola to the House plantation." This "Arcola" was a community on the Columbia Tap that the railroads called Hawdon (also spelled "Howden") to eliminate confusion with other uses of the Arcola name. Since the plantation had its own private rail network, a track may already have existed that I-GN was rebuilding to its standards. Or perhaps I-GN was laying new track along an existing ROW. Whatever the case, the spur's construction was never reported to RCT despite I-GN officially advertising service to "House's".
![]() |
Left: This timetable in the January, 1905 Official Railway Guide (ORG) shows that at least by September, 1904, I-GN was advertising service to House ("House's") by spur from Hawdon. The service to House does not appear in the November, 1898 ORG. As noted below, the SLRy claimed to serve "House" in 1898, but details are lacking. |
SLRy's route to Arcola Junction passed through the community of Duke which was on the Santa Fe line. A connection was made there to facilitate Santa Fe's competition for SLRy traffic through Galveston. RCT construction records state "Arcola" as the endpoint, and the SLRy ROW distance from Sugar Land to Arcola Junction (as measured on topographic maps) matches the 14.2 miles of construction reported to RCT. Additionally, a 1905 obituary references the permission "kindly granted" to the I-GN by the SLRy to operate a special funeral train from Arcola Junction to Duke on the SLRy's tracks. The SLRy advertised a connection with both the I-GN and the Santa Fe at Arcola Junction, in addition to their Santa Fe connection at Duke. Why would there be Santa Fe connections at both Duke and Arcola Junction, just over a mile apart? In his definitive historical resource, the 1941 tome A History of the Texas Railroads, S. G. Reed unfortunately doesn't explain, but he confirms that Cunningham extended the SLRy "...to Arcola, connecting with the Santa Fe...".
|
Left: The April, 1905 edition of The Quarterly of the Texas State Historical Association carried an obituary for John R. Fenn, the namesake of Fenn Rd. located immediately south of Tower 161 off of FM Rd. 521. Fenn had been an early owner of the Arcola Plantation, and he had settled at Duke, later moving to Houston in 1872. He was buried in the family cemetery at Duke, and the interment involved a special train on the I-GN that ran to Arcola Junction. The obituary then acknowledges the permission "kindly granted by the Sugarland Railway company to run this train over their track from Arcola Junction to Duke." [emphasis added] |
![]() |
Left: In the November, 1898 ORG, Cunningham advertised connections with Santa Fe (with French acute accent diacritic on the 'e' !) at Duke, and with Santa Fe and I-GN at Arcola Jct. Service to "House" was listed, implying a Santa Fe crossing, yet there's no evidence one existed by then. Was it merely a stop at the closest point (which was between DeWalt and Duke) for a carriage to the Arcola Plantation's private rails, 0.6 miles away? Perhaps "House" was a community north of the Santa Fe (thus far, unidentified?) Were trackage rights used to go to House via Arcola Junction and Hawdon? If so, wouldn't it have been listed last (and longer than 14.2 miles?) By 1906, the SLRy had stopped advertising service to House. But it would resume within a few years. |
A detailed track diagram would be helpful in understanding all of the connecting tracks (and their purposes) at Duke and Arcola Junction, but one has not been located. However, historic aerial imagery from 1953 does exist, and it shows that the SLRy ROW into Duke appears to continue by paralleling the Santa Fe tracks all the way to Arcola Junction where it aligns with an I-GN connecting track. This doesn't establish the original track layout in 1894, but it does show that by 1953, there was some kind of lengthy ROW from Duke to Arcola parallel to the Santa Fe, yet far enough apart to be visually distinct, and it fed directly into the Columbia Tap (hence, not originally a dirt road.) Whether this was the SLRy ROW is unconfirmed, but if it is, it's easy to envision how simple connections to the Santa Fe at Duke and Arcola Junction could effectively create a lengthy passing track to facilitate interchanging freight cars.

Above: This composite image is
taken from 1953 aerial photography ((c) historicaerials.com.) The
ROW west of Duke shows up as merely a tree line whereas the ROW east of Duke along the north side of Santa Fe's tracks appears well-defined and in
use. It certainly looks like a lengthy lead for
the visible northwest quadrant connector onto the Columbia Tap. Whether tracks
actually existed on this ROW in 1953, and if so, who owned them and built them (and when), remains undetermined.
In 1908, the Arcola Sugar Plantation was placed on the market by the trustee of the bankrupt estate of T. W. House. The plantation property was owned by the Arcola Sugar Mills Co. which was owned by the estate. The estate was bankrupt from the collapse of House's other investments, so the company was a valuable asset to be sold for the benefit of the estate's creditors. The company had been incorporated in 1903 when the plantation was reorganized. The company produced a prospectus (hat tip, John Walker) offering the plantation for sale. The prospectus included a map of the plantation showing that as of 1908, the SLRy had not yet crossed the Santa Fe at the future Sugar Land Junction. The prospectus also noted that in addition to I-GN, Santa Fe and SLRy tracks, it had three miles of private tracks that were all standard gauge. Unfortunately, the Arcola Sugar Mills Co. ultimately did not fare well; it produced no sugar after 1914.

Above: This 1908 map was part of the prospectus of the
Arcola Sugar Plantation. It appears to have been adapted from an earlier map of the
plantation drawn by the surveyor of Fort Bend County in 1890.
Annotations:
Purple
Line: SLRy tracks to Duke, continuing east toward Arcola Junction
Orange
Line: Santa Fe tracks to Duke, continuing east toward Arcola Junction and
Galveston
Pink Circle: future site of Sugar Land Junction
Light Blue Line:
private tracks of the Arcola Sugar Mills Co.; note that the tracks reach but do
not cross the Santa Fe tracks
Green Rectangle: House's Sugar House, the
primary mill
Blue Rectangle: another sugar house on the
property
Yellow Oval: the community of Duke
Red Line: I-GN tracks,
including Columbia Tap (vertical) and the spur to House's Sugar House (horizontal)
Green Circle: Hawdon (also known as "Arcola"), the spur's junction with the
Columbia Tap main line
Below: This photo in the
prospectus faces south
across the Santa Fe tracks at the future Sugar Land Junction. The prospectus states that its private trackage runs to
within "a few feet of the Santa Fe track". Literally.

The SLRy's initial construction connected to, but
remained north of, the Santa Fe at Duke. As pictured above, there were
private tracks west of Duke that came from the south and reached but did not cross the Santa Fe. It
appears that sometime between 1908 and 1911, the SLRy proceeded to build south
onto the private ROW of the Arcola Plantation. This Santa Fe crossing became
known as Sugar Land Junction (sometimes "Sugarland Junction".) The Santa Fe
Railway Historical and Modeling Society has a Joint Facilities Record for Sugar
Land Junction dated June 1, 1975 that provides an "Interchange Track Summary" of
the contract between Santa Fe and the SLRy for construction and operation of the interchange. The
document states that the "Date of Execution" was October 16, 1911. Whether this
was the beginning of the construction activity, or the date that operations on
the interchange began, is unknown. The diamond across the Santa Fe tracks would not have required an "interchange
track" contract, hence, it is possible that the interchange track came well after the
crossing was built. Whatever the case, the SLRy's tracks to Sugar Land Junction departed their main line at a location called Burnside (also "Burnside Switch".)
When the tracks to Duke and Arcola were abandoned, the track south from Burnside
became the main line.
Burnside was approximately 0.3 miles from the start of a sweeping curve
where the main line south from Sugar Land shifted to an easterly 95-degree
heading on a straight line to Duke. Much of this area
was cane fields. Whether the path between Burnside and Sugar Land Junction was an existing ROW, and if so, whether it ever had
tracks (or perhaps was merely a field road, as in the above photo), has not been
determined. Certainly by the end of 1911 it had standard gauge tracks for the SLRy to
reach Sugar Land Junction and continue southeast to House. Timetables show that Burnside was 10.7 miles from the
SP
crossing at Sugar Land. This is significant primarily because the Handbook of
Texas does not mention Burnside but makes references to "mile post 10.74" as the
departure point for SLRy's new tracks to the south. Burnside is "mile post 10.74".
Historic US
Geologic Survey Topographic Maps

Above: These two maps show the
SLRy at "Sugarland Junction" and Duke. The map at
left is the 1929 "redraw" of the 1915 1:125,000 map of
the "Sugarland" quadrant. The "System" label near Burnside comes from "Missouri
Pacific System"; by the time of the 1929 redraw, Missouri Pacific had
acquired the SLRy. The chart may show a very
short connecting track in the
southwest quadrant of "Sugarland Jct." (of which no other evidence has
been found), but it does not show any other connections
at the junction. As discussed above, an agreement for an interchange track (in
the northeast quadrant) existed by October, 1911, the track was documented by Santa Fe in
1915, and it appears on aerial imagery from 1953 onward. If it was, in fact, no
longer in place in 1929, this resulted from the reconstruction of the tracks
into Duke. This seems highly unlikely; other than this map, there's no evidence
that the interchange track was ever removed until the entire line was abandoned. At right,
the 1929 1:62,500 "Pearland" quadrant map shows the "Sugarland" tracks intact to Duke and paralleling the Santa Fe line a short distance, but not extending to Arcola
Junction. A siding is located west of the Columbia Tap main track immediately
north of Arcola Junction, and connections to the Santa Fe exist in both of that
junction's north
quadrants. (Perry-Castaneda
Map Collection, University of Texas)
Below
Left: This image taken from a Santa Fe "Gulf Lines" Mileage
Statement dated June, 1915 (hat tip, Greg Johnson) identifies the Santa Fe track
features between Arcola Junction and Sugar Land Junction. The "I&GN Ry. Conn."
listed at the top was Santa Fe's northbound connector onto the Columbia Tap
located in the northeast quadrant at Arcola Junction (originally for trackage
rights to Houston that Santa Fe held in the early 1880s.) The "I&GN Ry.
Crossing" was the diamond located 0.17 miles farther west, co-identified as
Arcola (i.e. "0.00" miles from the crossing.) Going geographically west, it was
1.33 miles farther to Duke, and then 1.86 miles from Duke to "Sugarland Ry.
Conn", the SLRy connecting track. The "Sugarland Ry. Conn" was installed to replace the Duke
connection, which was removed in 1911 and thus does not appear on this chart.
The comment column indicates that the beginning of the SLRy connector (the
"H.B.", head block) is in a "Pass Track" (passing track), and the passing track
begins 209 ft. "railroad north" (geographically west) of the connector. Note at
the bottom of the image that the next track feature after the SLRy crossing
diamond was 6.14 miles distant, i.e. there were no connecting tracks in the west
side quadrants of Sugar Land Junction when the Mileage Statement was compiled.
Below Right: When this same
Mileage Statement was updated in 1944, the location of the "Sugarland
Ry. Conn" had been moved, now starting only 1.82 miles west of Duke
(instead of 1.86), and being 0.09 miles from the crossing diamond (instead of
0.05.)

Below: This composite
image from 1968 aerial photography ((c) historicaerials.com) shows Sugar Land
Junction with a connecting track in the northeast quadrant. The connector
departed the Santa Fe main on a north side passing track. Per the 1915 and 1944
Mileage Statements, the passing track's west switch was 209 ft. west of the
connector switch (distance between the blue arrow and the light orange arrow.)
If nothing changed between 1944 and 1968, the connector switch would be 0.9
miles (475 ft.)
east of the diamond. Thus, the passing
track's west switch (blue arrow) should appear to be at 44% of the distance (209/475)
from the connector switch (light
orange arrow) to the diamond (green circle.) Notwithstanding the imprecision of
this exercise, it's at least visually in the ballpark... The passing track's east switch
location is not specified in the Mileage Statements, but matching it to
topographic maps measures it at 0.7 miles from the diamond, about 1.2 miles west
of Duke. Small structures (casting shadows to the north) appear close to, and
southwest of, the diamond, presumably
associated with the interlocker. A 1932 SLRy timetable denotes a "Yard" located
at Sugar Land Junction..

The Edridge Era and the Imperial Sugar Co.
In 1906, William Eldridge and the Kempner family of
Galveston jointly acquired the Cunningham Sugar Co. and control of the SLRy.
Eldridge had considerable experience in sugar production and railroads, having
helped build the Cane Belt Railroad in south Texas. He was named manager of the enterprise and quickly reorganized the
business into the Imperial
Sugar Company. In 1907, Eldridge chartered a new railroad, the Imperial Valley
Railway owned by Imperial Sugar, to begin construction north from Sugar Land to
Hempstead where rail connections to northern markets could be made. Track was laid to Cabell but then construction stopped. In 1912, Eldridge
arranged to sell the Imperial Valley Railway to the SLRy. Reed says that the
sale was "...twelve miles of trackage extending from Sugar Land to
Cabell...", so it may have included some temporary tracks serving cane
fields since Cabell is less than half that distance from Sugar Land. Although
the tracks had existed for several years, the Imperial Valley Railway had never
reported its construction to RCT. SLRy filed a report with RCT in 1912 recording
4.9 miles of construction from Sugar Land to Cabell, but this was most likely
rehabilitation of existing tracks. The SLRy expanded farther north with 12 miles
of track from Cabell to Hickey reported to RCT in 1931.

Above: Annotated and
corrected map of
Sugar Land area railroads, from an original map by
Mike Walker, Steam Powered Video (c)2001
In July, 1911, the state of Texas sued the SLRy for
removing a "short branch" to Arcola Junction. The October, 1913 issue of
Railway Age
Gazette (hat tip, Bill Willits) had the story:
“The State of Texas has lost
its case against the Sugarland Railway Company for penalties amounting to $5,000
and a mandatory injunction to compel the road to rebuild a short branch which
had been torn up and which the railroad claims would have cost $40,000 to
construct and $10,000 annually to maintain, with practically no revenue. The
case was filed in July, 1911, shortly before the company had extended its line
from a point three miles from Arcola Junction to a point eighteen miles south of
the connecting point of the International & Great Northern and the Santa Fe,
leaving a spur 3 1/2 miles long from the point of divergence of the extension to
Arcola Junction. Permission was granted by the Railroad Commission to tear up
the spur, but later the order was revoked, and the company was ordered to
rebuild the track.”
There is much to unpack in this article. The
"...spur 3 1/2 miles long from the point of divergence of the extension to
Arcola Junction" is the original main track to Duke and Arcola Junction (i.e.
it was never an "extension".) The
"point of divergence" is Burnside, where the tracks to Sugar Land
Junction departed the main line. Since Burnside was approximately mile post 10.7 and the total
distance to Arcola Junction was 14.2 miles, the difference was 3.5 miles. That the tracks to Duke and Arcola Junction had become
relegated to spur status suggests that SLRy's operational focus had shifted to Sugar Land Junction and House.
And for this spur to be seeing so little traffic that the SLRy was willing to (and
actually did!) remove it, then service from Burnside through Sugar Land Junction
to House must have begun at least some
reasonable
period of time before the spur's removal in 1911. Yet, it had to be after 1908 per the evidence in the prospectus. The implication is
that the new interchange points at House (or possibly Hawdon) and Sugar Land
Junction had quickly proved successful.
Becoming very confused, the article says
that the lawsuit was filed "shortly before the company...extended its
line...eighteen miles south". Yet, somehow this subsequent construction ended up
"...leaving
a spur 3 1/2 miles long..." which, of course, the lawsuit claimed "...had been torn up..."
before the new construction commenced. Other evidence
establishes that RCT's permission "...to tear up the spur..." was granted on
June 24, 1911 and, wasting no time, the SLRy accomplished the task prior to July
3, 1911 when RCT rescinded its permission. The article
also refers to "...a point three miles from Arcola Junction..." This
is a reference to Burnside, an editorial rounding of the length of the spur.
The Handbook of Texas rounded up, stating "...the four
miles between mile post 10.74 and Arcola were abandoned", apparently
sourced from a statement in Reed's book..."In 1912, about four
miles of trackage, from Arcola north, was abandoned."
The State of Texas lost the lawsuit, so they appealed. In 1914, the
appellate court reversed the trial court and ruled in favor of the State under
the theory that RCT had no power to abrogate an element of a railroad's charter,
which was a matter of state law. Evidence the SLRy provided to the appellate court (and recited in a snippet of the
court's ruling below) confirms that the spur to Duke and Arcola was seeing so
little use that "...its ties had rotted, and its rails rusted..."
(which sounds longer than the three years
between 1908, at the earliest, and June, 1911.) As a result of the appellate
court ruling, the SLRy immediately began working the political
angle to have the Legislature overturn the court's decision by
relieving the SLRy of the mandate to rebuild the spur. Whether the law proposed by Governor Ferguson
(below right) passed
has not been determined. Tracks into Duke that appear on the 1929 topographic
map suggest that the Governor did not succeed, but those tracks did not extend
to Arcola Junction, so perhaps there was a compromise.

Above Left and Center: portions of the 1914
appellate court decision in favor of the State of Texas, reversing the trial
court (edition 163 of the
Southwestern Reporter)
Above Right: Gov.
Ferguson asked the Legislature to pass his bill relieving the
SLRy of the court mandate to rebuild the spur.
Although Eldridge had acquired the Cunningham Sugar
Co., it still existed to some extent, at least on paper, and apparently owned
some railroad and land assets. The Handbook of Texas states that in 1912, the
SLRy "...purchased seventeen miles of private track, from mile post 10.74 to Rotchford,
from the Cunningham Sugar Company. This gave the Sugar Land Railway Company a
new connection with the International and Great Northern, and the four miles
between mile post 10.74 and Arcola were abandoned." [Note:
It seems odd that the sale was by the "Cunningham Sugar Co." unless that company
somehow acquired the rail assets of the Arcola Plantation when the plantation
was up for sale in 1908; evidence of such asset transfer has not been found.] As discussed
above, the abandonment of the spur from Burnside ("mile post 10.74") to Arcola
Junction occurred before the
1911 lawsuit and was unrelated to any 1912 construction. The sale of 17 miles of private
tracks from Burnside to Rotchford must have included the
tracks between Burnside and Sugar Land Junction which had been in use by SLRy at
least since Sugar Land Junction was built. This does not account for the 13.62 miles from "Arcola" to "Ratchford"
reported to RCT in 1912. Regardless of which "Arcola" is used, Rotchford
is more distant than 13.62 miles. And why would "Arcola" be the starting
point reported to RCT?
A major impetus for the 1912 construction was to
realize the benefit of a direct connection into Velasco through Anchor,
presumably with the
H&BV. But the June, 1911 issue of the American
Sugar Industry and Beet Sugar Gazette reported that the SLRy had amended
its charter to build south to Angleton to
connect with the St. Louis, Brownsville and Mexico (SLB&M) Railway (which
explains the appellate court's recitation of SLRy's claim they "...had
procured a charter...".) The SLB&M operated a main line from
Algoa (near Houston) to
Harlingen and Brownsville. The SLB&M at Angleton
was only four miles beyond Anchor on the way to Velasco. An SLB&M interchange
would be valuable for the SLRy, shortening the rail distance to the ports of
Corpus Christi and Brownsville, and offering a shorter route to receive
Mexican sugar cane by rail.
The 1912 construction endpoint, Rotchford, appears on a 1925 Sugar Land Railway timetable
as 0.7 miles south of Otey
and less than six miles from Anchor. In 1916, RCT records show the SLRy
completing 6.22 miles from Otey to Anchor. It's not likely that the tracks from Otey to Rotchford
were rebuilt so soon, so
perhaps the 1912 construction actually ended at Otey while the purchased tracks
ended at Rotchford. Otey was 13.7 "timetable miles" from House, a distance that
could easily explain the 13.62 miles of construction reported
to RCT in 1912.
If construction started at House, why was "Arcola" the reported origin? Clearly "Arcola" was not Arcola Junction, to which the
SLRy had abandoned its
tracks the year before. One simple possibility is that "Arcola" was merely a
generic reference to "Arcola Plantation" because the construction began at
House, its headquarters. But House would not satisfy the
Handbook of Texas' claim that the SLRy obtained a new I-GN connection.
The
SLRy had been using some I-GN connection, presumably House, long enough to be willing to abandon Arcola Junction. "Arcola" could be referring to
the community (known to the railroads as Hawdon) that appears on an 1890 survey map of the
plantation. In that case, perhaps the SLRy did some
kind of track work between Arcola (Hawdon) and House, not amounting to much
distance but enough to justify claiming Arcola as where construction began
(and choosing to cite "Arcola" instead of "Hawdon" for unknown
reasons.) If so, the interpretation is that Hawdon was the new I-GN interchange
point replacing House. The SLRy did eventually advertise service to Hawdon and
it had trackage rights on the I-GN through Hawdon into Houston. Whether the 1912
construction pertained to those rights is unknown.
![]() |
Left: In June, 1920 I-GN was granted authority by RCT to stop passenger and mixed train service over the spur to House. The order granting permission was suspended in July and reinstated in September for "...regular through passenger trains...". The implication is that I-GN had been making the 1.9 mile run from Hawdon to House with all of its "through passenger trains". There was a wye at House onto which they could back the train to be able to pull out and resume going north or south at Hawdon, but this was no doubt a time-consuming maneuver. RCT granted permission because SLRy also served House. SLRy trains didn't have this issue; their departure from House continued in their current direction. Note that I-GN was not seeking to abandon the spur; they built it but they didn't own it. It was originally private track (hence never reported to RCT) and likely part of the 1912 plantation track purchase by SLRy. |
Construction by the SLRy toward Otey and Rotchford required the creation of "House Junction". Coming south from Sugar Land Junction, the main track to House and Hawdon curved to the west to avoid Oyster Creek and then looped back due east, staying south of the creek and passing the House depot on the way to Hawdon. For the new route to Anchor, a switch north of House was installed to control the choice to go to Hawdon or to continue south toward Anchor. This arrangement caused the new track to cross over the existing track south of the bend in Oyster Creek. Historic aerial imagery suggests that connecting tracks existed at this diamond in both of the south quadrants. This was most likely a wye that predated the creation of House Junction so that trains from Hawdon to House could turn around. The new track aligned with the wye and continued south from there.

Above: 1951 aerial imagery ((c) historicaerials.com)
shows the curve that allowed the main track to avoid a large bend in Oyster
Creek and proceed due east past House continuing to Hawdon, whereas the new track to
Anchor went straight, crossing the main track. There also appear to have been
connector tracks south of the crossing diamond, most likely serving as a wye so
that I-GN trains from Hawdon could turn around.
The goal of the SLRy extension to Anchor was to lower
shipping costs through Velasco with a direct rail connection. Rail access via
Angleton to Mexico and ports to the south was also a consideration. Whether this
goal was achieved in the initial years after construction was completed in 1916 is unknown. Missouri Pacific (MP) acquired the I-GN (1925), the
H&BV (1925) and the SLRy (1926), and began to eliminate unprofitable or
duplicate tracks. Local traffic was insufficient to keep the House - Anchor
route profitable, and freight from Velasco or points south could go via Angleton
and the Columbia Tap to Hawdon for delivery to the SLRy, all within the MP family
(which owned the SLB&M.) Understandably, the 21 miles from House Junction to Anchor was
abandoned in 1932. Although purchased by
MP's subsidiary New Orleans, Texas & Mexico Railway
in 1926,
the SLRy continued to
operate under its own name. 1956, it was formally merged into the MP system and
the SLRy name was dropped.
A March, 1925 SLRy timetable advertises mixed train
service from Sugar Land to House continuing to Houston via I-GN trackage rights.
A 1932 MP timetable shows SLRy mixed train service to House and Hawdon but does
not show service continuing to Houston. However, that timetable shows northbound
I-GN mixed train service arriving Hawdon at 6:56 pm, 4 minutes before a SLRy
mixed train from Sugar Land arrives at Hawdon. The I-GN's arrival at the next
station north, Arcola Junction, was 29 minutes later, covering a distance of
only 2.3 miles. The clear implication is that the I-GN train waited for the SLRy
northbound passengers to transfer (even though the ride to Houston was short,
these were mixed trains, hence it's possible that cars were transferred, not
just people.) The SLRy train back to Sugar Land did not
depart Hawdon until 9:45 pm, 10 minutes after I-GN's southbound train from
Houston had arrived. In
A History of the Texas Railroads, S. G. Reed
states that as of January, 1940, the SLRy "...has a trackage contract with the I. &
G. N. under which it may operate trains to Houston from its southern terminus at
Sugar Land Junction." Sugar Land Junction would be an unusual "terminus"
since there was no population there. Presumably Reed meant that trains would
begin in Sugar Land, go south through Sugar Land Junction to
House and Hawdon, and then to Houston via I-GN trackage rights. But it is also
possible that some (or all) of the trains encompassed by Reed's reference could
be going from Sugar Land Junction to Arcola Junction on Santa Fe trackage rights
to reach the northbound Columbia Tap. This might better accommodate his
reference to Sugar Land Junction as the "southern terminus." As to whether this was
passenger, freight or mixed service, Reed doesn't say. A 1959 MP timetable shows
freight service, but no mixed or passenger trains, between Sugar Land, House and Hawdon, and
does not show continuing service to Houston.
Three years before the SLRy became part of MP, the
crossing of the SP and the SLRy in Sugar Land was interlocked. Tower 114
was authorized for operation on April 30, 1923 with
an 11-function electrical interlocker. It was a manned, 2-story structure on Imperial Sugar Company property. It was
most likely constructed by SLRy since SP's tracks (constructed by
GH&SA predecessor BBB&C) had arrived first; the tower construction task usually fell
to the second railroad. In November, 1941, Railway
Signaling journal reported that SP (through it's operating railroad in
Texas, the Texas & New Orleans - T&NO) was proposing a modification of the Tower
114 interlocker "...involving installation of bolt lock on 1 hand-operated
switch, and removal of 1 hand-operated switch with interlocked siding derail on
M.P.; removal of 2 main-track derails on T&NO." A note from 1951 in Vol. 68
of Trains-communicator (which appears to be a
newsletter of the union representing tower operators) states "The gang is at
Sugarland putting in the automatic crossing which means the end of Tower 114 and
probably a couple operators." The fate of the structure is unknown, but the
interlocker was apparently fully automated sometime in 1951.

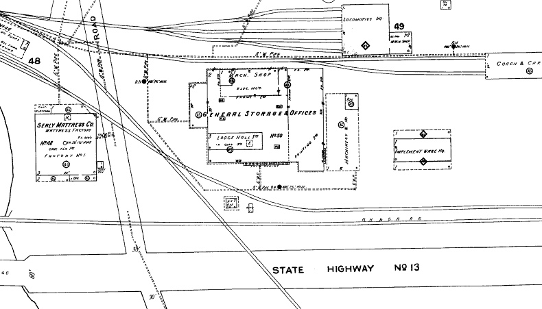
Above: The February 1926 Sanborn Fire Insurance Map of
Sugar Land shows Tower 114 located in the northeast quadrant of the crossing.
Magnification (at right) shows that the cartographer documented the tower as a
2-story structure with a door (x) on the southeast corner and an internal
staircase (1-2) in the southwest corner. The dashed line surrounding the tower
probably indicates an enlarged roof overhang.
Below: Imperial Sugar provides this 1932 street scene
within their plant complex that happened to capture Tower 114 in the background
(magnification below right.))

|
Left: Plans to
modify the Tower 114 interlocker were advertised in the September, 1950
issue of Railway Signaling and
Communications. Among the changes were the replacement of the
mechanical interlocking with a "ground-lever type unattended
interlocking" along with numerous signals and derails. At bottom, the
sentence extends to another column with a short but important finish:
"...and removal of mechanical interlocking machine and all mechanical interlocking facilities. Purpose: To modernize the equipment and make operation more economical." This appears to be the announcement of the activity that culminated in the aforementioned arrival of "...the gang...at Sugarland putting in the automatic crossing...". |
The two north/south rail crossings of the Santa Fe, at Arcola Junction
(I-GN) and Sugar
Land Junction (SLRy), were assigned tower numbers 161 and 162, respectively, and were authorized for operation in July, 1930. Tower 161's interlocker was
listed as a "Mechanical - Cabin", likely no more than a hut or a
cabinet operated by train crews on the Columbia Tap. The signals would normally
be lined to maintain continuous operation on the busy Santa Fe tracks. When I-GN trains needed to cross,
their crews would line the
signals against the Santa Fe, have the train proceed through the crossing, and
then re-line the signals for the Santa Fe before continuing away from the interlocker.
Tower 162's interlocker is listed as "Mechanical - Electric".
The control system might have been inside an unmanned cabin, or it might merely
have been a metal post with buttons that used
electrical relays to control the signals. Either way, it would have been
operated by SLRy train crews so that the signals were lined against the Santa Fe
only when SLRy trains needed to cross. Tower 162 has the
distinction of being the last numbered interlocker to have a service date in the final list of interlockers published by RCT in the 1931 Annual
Report. Towers 163 through 170 appear in this final list, but are "Under
Construction". Subsequent RCT annual reports omitted the detailed list of
numbered interlockers.
Below Left:
This photo was taken along the SLRy ROW during or shortly after the abandonment
of the Tower 162 crossing. The SLRy block light is visible in the distance (John Treadgold collection.)
Below Right: This aerial image
from 2009 shows the remnant of the Tower 162 interlocker equipment adjacent to
the Santa Fe tracks. The SLRy ROW was (and continues to be) used for utility lines.
The track at the bottom of the image is the spur to Smithers Lake built in the
late 1990s.

The SLRy's northward extension from Cabell to Hickey
was abandoned back to Cabell in 1942. Another three miles south from Cabell to
Pryor was abandoned in 1952. The tracks to Pryor lasted until 1985. The
tracks from Sugar Land to Hawdon via Tower 162 apparently remained intact until 1981 when
MP abandoned the segment between Hawdon and Herbert, which was just over
three rail miles south of the Tower 114 crossing. The former SP main line remains busy, now owned by Union Pacific
(UP),
which also owns the Columbia Tap. The Santa Fe line remains intact, operated by successor Burlington
Northern Santa Fe (BNSF). The Columbia Tap south of Arcola Junction
was abandoned in stages beginning with the Anchor to East Columbia segment in
1956. Tracks south of Hawdon were removed in 1987, and the remainder south of
Tower 161 have since been abandoned although the crossing remains intact.
Smithers Lake
In 1956,
Houston Lighting & Power (HL&P) began construction of a natural gas-fired
electricity generation plant southeast of Richmond along Dry Creek. The plant
required a source for cooling water, so a new reservoir, Smithers Lake, was
impounded in 1957, increasing the capacity of an existing small lake. There was
already a rail line adjacent to the plant site because in 1930-31, Santa Fe
(through its subsidiary Cane Belt Railroad) had built a branch line that
departed the Santa Fe main at the community of Thompsons and proceeded southwest
for 33 miles to a junction with an existing Cane Belt line. This branch served the massive sulfur deposit at
Newgulf and required
a crossing (lightly used and never interlocked) of an existing SP rail line
at Guy that had been built in 1918 to reach mineral deposits at Damon Mound.
When Smithers Lake added a coal-burning power generation unit in the late
1970s, the branch line gave Santa Fe an advantage in supplying coal to the power
plant. Santa Fe's arrangement with Burlington Northern (BN) had BN bringing coal
trains from Wyoming to Fort Worth where Santa Fe would take over and bring them
to Smithers Lake. Empty trains were sent back to Fort Worth and handed over to BN. The target
round-trip cycle time to Smithers Lake from Ft. Worth was 44 hours, including 4 hours
to unload.
HL&P fought for better rates on coal deliveries through proceedings
with the Interstate Commerce Commission in the late 1970s and early 1980s.
Ultimately HL&P signed long term contracts to use BN and Santa Fe trains to
deliver most of the coal they needed, but they also put out periodic open bids
for additional coal. UP teamed with Chicago & Northwestern to bid successfully
on many of these short term contracts. Since Santa Fe had the only tracks
into Smithers Lake, UP trains were interchanged with Santa Fe at Ft. Worth for
the round trip to Smithers Lake (hat tip, Tom Kline.)
That HL&P was getting better
rates on these short term deliveries was a major factor in their opposition to
the BN/Santa Fe merger that created BNSF in the mid 1990s. If the merger was to
be approved, they requested overhead trackage rights from Sealy and/or Rosenberg
to Smithers Lake so that coal trains of competitor railroads could deliver directly to
the plant. It appears that this request was denied because after the merger,
HL&P worked with UP to build a line directly into Smithers Lake from Arcola
Junction, avoiding the need to use BNSF tracks. As a result of this effort, the
Tower 161 crossing continues to exist.
Annotated Google Map, Towers 161 and 162

Above: Approximately 3.5 miles
of track separates the locations of Towers 161 and 162 along the BNSF main line.
In the 1990s, HL&P worked with UP to execute a plan to establish competition for
coal deliveries by building a new line to Smithers Lake that would avoid the
need to use BNSF's tracks. UP rehabilitated the Columbia Tap from the north (red) to Tower 161 to be able to carry coal trains, and then added a
sweeping 90-degree curve to the northwest immediately south of the crossing. New
tracks (green) reached the BNSF main line (yellow) ROW and then became
parallel. From there, the new line continued to a location 4.5 miles west of the
former Tower 162 site, at the community of Thompsons (off the map to the left),
where it then curved to the southwest to reach Smithers Lake. HL&P owned the new
Smithers Lake spur and gave UP contracts for coal deliveries. [Deregulation of
the Texas retail electricity market in 2002 resulted in significant breakup and
restructuring of corporate utilities including HL&P; it appears that NRG,
through its subsidiary Reliant Energy, now owns these tracks.] Ultimately, the
plan did not provide effective competition because UP's routing required coal
trains to transit though their busy Houston rail network to reach the Columbia
Tap, creating delivery
uncertainties and raising costs. By contrast, BNSF coal trains arrived via Ft.
Worth, Temple and Rosenberg, completely avoiding Houston. Eventually, BNSF
decided to add their own 180-degree connector to access HL&P's Smithers Lake
spur. This benefited them by allowing multiple coal trains to be queued over the spur's
10-mile length, keeping parked trains off of the busy main line sidings. Empty coal trains
would continue to depart Smithers Lake using BNSF's tracks
directly to the main line near Thompsons where they turned west toward Rosenberg. The balloon track (red loop) off of the Columbia Tap south of Tower 161 is a very recent addition,
apparently a sand operation served by UP.
Below: UP's
Columbia Tap line (purple arrows) no longer proceeds south of Tower 161 (pink
circle) except for an immediate sweeping curve that connects (via the red arrow
switch) to both the Smithers Lake spur (green arrows) and a new sand operation
(blue arrows, built in 2018-2019.) The sand operation tracks curve into a tight
loop that returns back to a connection with itself (pink arrow.) The Smithers
Lake spur (construction date unknown, sometime between January, 1995 and April, 2002) follows the BNSF
(yellow arrows) alignment west toward Thompsons and then veers southwest to the
plant. Satellite imagery shows that by January, 2009, BNSF was building its own
connector to the spur which required a 180 degree semicircle (orange arrows) to
bring it onto the correct alignment. BNSF's loaded coal trains arrive eastbound
on the main and take this
loop to access the spur. Since the spur is ten miles long, multiple loaded
coal trains can be queued on it, freeing up valuable siding space on the main
line and improving delivery reliability.


Above: West of Tower 162, the
Smithers Lake spur (green arrows) and the BNSF main (yellow arrows) remain
parallel across the Brazos River (pink circle, which required a new bridge for
the spur.) Near the community of Thompsons, the spur curves away from the BNSF
main, creating a track that slants southwest toward the Smithers Lake plant. A
BNSF equipment cabinet at the Oilfield Rd. grade crossing (lower left corner)
implies that BNSF maintains the spur.
Below:
The spur tracks (green arrows) slant southwest from Thompsons and then curve due
west into a utility ROW for the final 1.5 miles into the plant. The spur tracks
merge (at red arrow switch) into the existing plant tracks (blue arrows.) Empty
BNSF trains proceed northeast through the switch on a track (yellow arrows) to
the main line at Thompsons where they proceed west. (And since this direct route
remains operational, might it still be used occasionally, rather than the spur,
for an inbound coal train?) UP's empty coal trains had to depart via the
Columbia Tap, preventing UP from having any other train on the spur. Note that
there are maps of this area showing the utility ROW hosting UP's spur from
Smithers Lake all the way due east to the Columbia Tap, but they are incorrect.
No objective evidence of UP rails on this ROW east of the slant track curve has been found.

Above: Looking east, the Santa Fe crosses the Columbia Tap at Tower 161 and then crosses Farm Road 521 in quick succession. (R. J. McKay photo) Below: the Tower 161 interlocker control box (Tom Kline photo)

Above Left: The W T Byler Co. supplies this
northeast-facing aerial image of their construction of the BNSF connector loop.
The other curved track was UP's access to the Smithers Lake spur from Tower 161.
Above Right: With an
impressive number of power lines in view, John Treadgold took this photo of the
Smithers Lake spur connection to the Smithers Lake plant tracks on July 13, 2020.